和正咨询
政策法规
当前位置>网站首页 > 新闻中心 > 政策法规
住房城乡建设部关于发布国家标准《建筑工程建筑面积计算规范》的公告
发布时间:2019-05-14   查看次数:1965

       现批准《建筑工程建筑面积计算规范》为国家标准,编号为GB/T50353-2013,自2014年7月1日起实施。原《建筑工程建筑面积计算规范》GB/T50353-2005同时废止。 

       本规范由我部标准定额研究所组织中国计划出版社出版发行。

                                                                                                                                                          住房城乡建设部          

                                                                                                                                                          2013年12月19日 

 2014建筑工程建筑面积计算规范

前言

根据住房和城乡建设部《关于印发<2012年工程建设标准规范制订修订计划>的通知》(建标[2012]5号)的要求,规范编制组经广泛调查研究,认真总结经验,并在广泛征求意见的基础上,修订了本规范。

本规范的主要技术内容是:1.总则;2.术语;3.计算建筑面积的规定。

本规范修订的主要技术内容是:1.增加了建筑物架空层的面积计算规定,取消了深基础架空层;2.取消了有永久性顶盖的面积计算规定,增加了无围护结构有围护设施的面积计算规定;3.修订了落地橱窗、门斗、挑廊、走廊、檐廊的面积计算规定;4.增加了凸(飘)窗的建筑面积计算要求;5.修订了围护结构不垂直于水平面而超出底板外沿的建筑物的面积计算规定;6.删除了原室外楼梯强调的有永久性顶盖的面积计算要求;7.修订了阳台的面积计算规定;8.修订了外保温层的面积计算规定;9.修订了设备层、管道层的面积计算规定;10.增加了门廊的面积计算规定;11.增加了有顶盖的采光井的面积计算规定。

本规范由住房和城乡建设部负责管理,由住房和城乡建设部标准定额研究所负责具体技术内容的解释。执行过程中如有意见和建议,请寄送住房和城乡建设部标准定额研究所(地址:北京市三里河路9号,邮编:100835)。

本规范主编单位:住房和城乡建设部标准定额研究所

本规范参编单位:北京市建设工程造价管理处

辽宁省建设工程造价管理总站

黑龙江省建设工程造价管理总站

浙江省建设工程造价管理总站

四川省建设工程造价管理总站

陕西省建设工程造价总站

本规范主要起草人员:李艳海 王海宏 胡晓丽 陈国立 徐成高 吴宏伟

王玉波 胡建明 程万里 杜浐阳 白洁如 刘大同

赵 彬 泽仁江措

目次

1 总 则…………………………………………………………………………………………3

2 术 语…………………………………………………………………………………………4

3 计算建筑面积的规定…………………………………………………………………………6

本规范用词说明…………………………………………………………………………………8

附:条文说明……………………………………………………………………………………9

Contents

1 General Provisions…………………………………………………………………………3

2Terms…………………………………………………………………………………..……4

3 Calculation rules of construction area………………………………………………..….…6

Explanation of Wording in This Code…………………………………………………..……8

Addition:Explanation of Provisions…………………………………………………..………9

1 总 则

1.0.1 为规范工业与民用建筑工程建设全过程的建筑面积计算,统一计算方法,制定本规范。

1.0.2 本规范适用于新建、扩建、改建的工业与民用建筑工程建设全过程的建筑面积计算。

1.0.3 建筑工程的建筑面积计算,除应符合本规范外,尚应符合国家现行有关标准的规定。

2 术 语

  2.0.1 建筑面积 construction area

  建筑物(包括墙体)所形成的楼地面面积。

  2.0.2 自然层 floor

  按楼地面结构分层的楼层。

  2.0.3 结构层高 structure story height

  楼面或地面结构层上表面至上部结构层上表面之间的垂直距离。

  2.0.4 围护结构 building enclosure

  围合建筑空间的墙体、门、窗。

  2.0.5 建筑空间 space

  以建筑界面限定的、供人们生活和活动的场所。

  2.0.6 结构净高 structure net height

  楼面或地面结构层上表面至上部结构层下表面之间的垂直距离。

  2.0.7 围护设施 enclosure facilities

  为保障安全而设置的栏杆、栏板等围挡。

  2.0.8 地下室 basement

  室内地平面低于室外地平面的高度超过室内净高的1/2的房间。

  2.0.9 半地下室 semi-basement

  室内地平面低于室外地平面的高度超过室内净高的1/3,且不超过1/2的房间。

  2.0.10 架空层 stilt floor

  仅有结构支撑而无外围护结构的开敞空间层。

  2.0.11 走廊 corridor

  建筑物中的水平交通空间。

  2.0.12 架空走廊 elevated corridor

  专门设置在建筑物的二层或二层以上,作为不同建筑物之间水平交通的空间。

  2.0.13 结构层 structure layer

  整体结构体系中承重的楼板层。

  2.0.14 落地橱窗 french window

  突出外墙面且根基落地的橱窗。

  2.0.15 凸窗(飘窗) bay window

  凸出建筑物外墙面的窗户。

  2.0.16 檐廊 eaves gallery

  建筑物挑檐下的水平交通空间。

  2.0.17 挑廊 overhanging corridor

  挑出建筑物外墙的水平交通空间。

  2.0.18 门斗 air lock

  建筑物入口处两道门之间的空间。

  2.0.19 雨篷 canopy

  建筑出入口上方为遮挡雨水而设置的部件。

  2.0.20 门廊 porch

  建筑物入口前有顶棚的半围合空间。

  2.0.21 楼梯 stairs

  由连续行走的梯级、休息平台和维护安全的栏杆(或栏板)、扶手以及相应的支托结构组成的作为楼层之间垂直交通使用的建筑部件。

  2.0.22 阳台 balcony

  附设于建筑物外墙,设有栏杆或栏板,可供人活动的室外空间。

  2.0.23 主体结构 major structure

  接受、承担和传递建设工程所有上部荷载,维持上部结构整体性、稳定性和安全性的有机联系的构造。

  2.0.24 变形缝 deformation joint

  防止建筑物在某些因素作用下引起开裂甚至破坏而预留的构造缝。

  2.0.25 骑楼 overhang

  建筑底层沿街面后退且留出公共人行空间的建筑物。

  2.0.26 过街楼 overhead building

  跨越道路上空并与两边建筑相连接的建筑物。

  2.0.27 建筑物通道 passage

  为穿过建筑物而设置的空间。

  2.0.28 露台 terrace

  设置在屋面、首层地面或雨篷上的供人室外活动的有围护设施的平台。

  2.0.29 勒脚 plinth

  在房屋外墙接近地面部位设置的饰面保护构造。

  2.0.30 台阶 step

  联系室内外地坪或同楼层不同标高而设置的阶梯形踏步。

3 计算建筑面积的规定

  3.0.1 建筑物的建筑面积应按自然层外墙结构外围水平面积之和计算。结构层高在2.20m及以上的,应计算全面积;结构层高在2.20m以下的,应计算1/2面积。

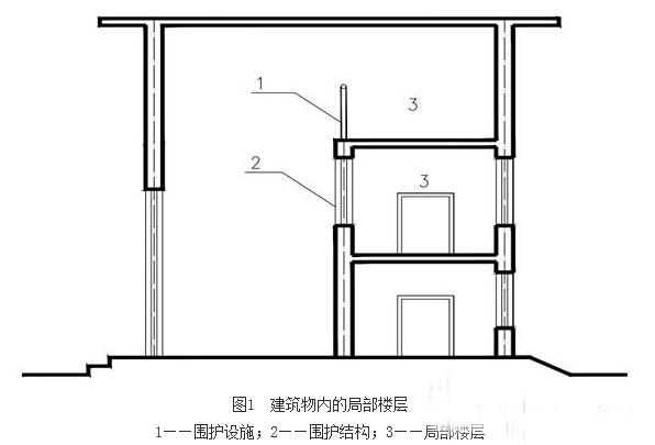
  3.0.2 建筑物内设有局部楼层时,对于局部楼层的二层及以上楼层,有围护结构的应按其围护结构外围水平面积计算,无围护结构的应按其结构底板水平面积计算,且结构层高在2.20m及以上的,应计算全面积,结构层高在2.20m以下的,应计算1/2面积。

  3.0.3 对于形成建筑空间的坡屋顶,结构净高在2.10m及以上的部位应计算全面积;结构净高在1.20m及以上至2.10m以下的部位应计算1/2面积;结构净高在1.20m以下的部位不应计算建筑面积。

  3.0.4 对于场馆看台下的建筑空间,结构净高在2.10m及以上的部位应计算全面积;结构净高在1.20m及以上至2.10m以下的部位应计算1/2面积;结构净高在1.20m以下的部位不应计算建筑面积。室内单独设置的有围护设施的悬挑看台,应按看台结构底板水平投影面积计算建筑面积。有顶盖无围护结构的场馆看台应按其顶盖水平投影面积的1/2计算面积。

  3.0.5 地下室、半地下室应按其结构外围水平面积计算。结构层高在2.20m及以上的,应计算全面积;结构层高在2.20m以下的,应计算1/2面积。

  3.0.6 出入口外墙外侧坡道有顶盖的部位,应按其外墙结构外围水平面积的1/2计算面积。

  3.0.7 建筑物架空层及坡地建筑物吊脚架空层,应按其顶板水平投影计算建筑面积。结构层高在2.20m及以上的,应计算全面积;结构层高在2.20m以下的,应计算1/2面积。

  3.0.8 建筑物的门厅、大厅应按一层计算建筑面积,门厅、大厅内设置的走廊应按走廊结构底板水平投影面积计算建筑面积。结构层高在2.20m及以上的,应计算全面积;结构层高在2.20m以下的,应计算1/2面积。

  3.0.9 对于建筑物间的架空走廊,有顶盖和围护设施的,应按其围护结构外围水平面积计算全面积;无围护结构、有围护设施的,应按其结构底板水平投影面积计算1/2面积。

  3.0.10 对于立体书库、立体仓库、立体车库,有围护结构的,应按其围护结构外围水平面积计算建筑面积;无围护结构、有围护设施的,应按其结构底板水平投影面积计算建筑面积。无结构层的应按一层计算,有结构层的应按其结构层面积分别计算。结构层高在2.20m及以上的,应计算全面积;结构层高在2.20m以下的,应计算1/2面积。

  3.0.11 有围护结构的舞台灯光控制室,应按其围护结构外围水平面积计算。结构层高在2.20m及以上的,应计算全面积;结构层高在2.20m以下的,应计算1/2面积。

  3.0.12 附属在建筑物外墙的落地橱窗,应按其围护结构外围水平面积计算。结构层高在2.20m及以上的,应计算全面积;结构层高在2.20m以下的,应计算1/2面积。

  3.0.13 窗台与室内楼地面高差在0.45m以下且结构净高在2.10m及以上的凸(飘)窗,应按其围护结构外围水平面积计算1/2面积。

  3.0.14 有围护设施的室外走廊(挑廊),应按其结构底板水平投影面积计算1/2面积;有围护设施(或柱)的檐廊,应按其围护设施(或柱)外围水平面积计算1/2面积。

  3.0.15 门斗应按其围护结构外围水平面积计算建筑面积,且结构层高在2.20m及以上的,应计算全面积;结构层高在2.20m以下的,应计算1/2面积。

  3.0.16 门廊应按其顶板的水平投影面积的1/2计算建筑面积;有柱雨篷应按其结构板水平投影面积的1/2计算建筑面积;无柱雨篷的结构外边线至外墙结构外边线的宽度在2.10m及以上的,应按雨篷结构板的水平投影面积的1/2计算建筑面积。

 3.0.17 设在建筑物顶部的、有围护结构的楼梯间、水箱间、电梯机房等,结构层高在2.20m及以上的应计算全面积;结构层高在2.20m以下的,应计算1/2面积。

  3.0.18 围护结构不垂直于水平面的楼层,应按其底板面的外墙外围水平面积计算。结构净高在2.10m及以上的部位,应计算全面积;结构净高在1.20m及以上至2.10m以下的部位,应计算1/2面积;结构净高在1.20m以下的部位,不应计算建筑面积。

  3.0.19 建筑物的室内楼梯、电梯井、提物井、管道井、通风排气竖井、烟道,应并入建筑物的自然层计算建筑面积。有顶盖的采光井应按一层计算面积,且结构净高在2.10m及以上的,应计算全面积;结构净高在2.10m以下的,应计算1/2面积。

  3.0.20 室外楼梯应并入所依附建筑物自然层,并应按其水平投影面积的1/2计算建筑面积。

  3.0.21 在主体结构内的阳台,应按其结构外围水平面积计算全面积;在主体结构外的阳台,应按其结构底板水平投影面积计算1/2面积。

  3.0.22 有顶盖无围护结构的车棚、货棚、站台、加油站、收费站等,应按其顶盖水平投影面积的1/2计算建筑面积。

  3.0.23 以幕墙作为围护结构的建筑物,应按幕墙外边线计算建筑面积。

  3.0.24 建筑物的外墙外保温层,应按其保温材料的水平截面积计算,并计入自然层建筑面积。

  3.0.25 与室内相通的变形缝,应按其自然层合并在建筑物建筑面积内计算。对于高低联跨的建筑物,当高低跨内部连通时,其变形缝应计算在低跨面积内。

  3.0.26 对于建筑物内的设备层、管道层、避难层等有结构层的楼层,结构层高在2.20m及以上的,应计算全面积;结构层高在2.20m以下的,应计算1/2面积。

  3.0.27 下列项目不应计算建筑面积:

  1 与建筑物内不相连通的建筑部件;

  2 骑楼、过街楼底层的开放公共空间和建筑物通道;

  3 舞台及后台悬挂幕布和布景的天桥、挑台等;

  4 露台、露天游泳池、花架、屋顶的水箱及装饰性结构构件;

  5 建筑物内的操作平台、上料平台、安装箱和罐体的平台;

  6 勒脚、附墙柱、垛、台阶、墙面抹灰、装饰面、镶贴块料面层、装饰性幕墙,主体结构外的空调室外机搁板(箱)、构件、配件,挑出宽度在2.10m以下的无柱雨篷和顶盖高度达到或超过两个楼层的无柱雨篷;

  7 窗台与室内地面高差在0.45m以下且结构净高在2.10m以下的凸(飘)窗,窗台与室内地面高差在0.45m及以上的凸(飘)窗;

  7 室外爬梯、室外专用消防钢楼梯;

  8 无围护结构的观光电梯;

       9 建筑物以外的地下人防通道,独立的烟囱、烟道、地沟、油(水)罐、气柜、水塔、贮油(水)池、贮仓、栈桥等构筑物。

本规范用词说明

1 为便于在执行本规范条文时区别对待,对要求严格程度不同的用词说明如下:

1)表示很严格,非这样做不可的:

正面词采用“必须”,反面词采用“严禁”。

2)表示严格,在正常情况下均应这样做的:

正面词采用“应”,反面词采用“不应”或“不得”。

3)表示允许稍有选择,在条件许可时首先应这样做的:

正面词采用“宜”,反面词采用“不宜”。

4)表示有选择,在一定条件下可以这样做的,采用“可”。

2 条文中指明应按其他有关标准执行的写法为:“应符合……的规定”或“应按……执行”。

中华人民共和国国家标准

建筑工程建筑面积计算规范

《条文说明》

GB/T 50353-2013

条文说明

修订说明

《建筑工程建筑面积计算规范》(GB/50353-2013),经住房和城乡建设部2013年××月××日以第××号公告批准发布。

本规范是在《建筑工程建筑面积计算规范》(GB/50353-2005)的基础上修订而成,上一版的主编单位是住房和城乡建设部标准定额研究所,主要起草人员是胡晓丽、王彭林、徐金泉、王海宏、李艳海、白洁如、徐佩清、李学范、朱连。

为便于规划、设计、施工、科研、学校等单位有关人员在使用本规范时能正确理解和执行条文规定,《建筑工程建筑面积计算规范》编制组按顺序,编制了包括条文规定的目的、依据以及执行中需注意的有关事项等内容的条文说明。本条文说明不具备与规范正文同等的法律效力,仅供使用者在理解和把握规范条文规定时参考。

目次

1总则 ………………………………………………………………………………

2术语…………………………………………………………………………………

3 计算建筑面积的规定………………………………………………………………

1 总 则

1.0.1 我国的《建筑面积计算规则》最初是在20世纪70年代制订的,之后根据需要进行了多次修订。1982年国家经委基本建设办公室(82)经基设字58号印发了《建筑面积计算规则》,对20世纪70年代制订的《建筑面积计算规则》进行了修订。1995年建设部发布《全国统一建筑工程预算工程量计算规则》(土建工程GJDGZ-101-95),其中含“建筑面积计算规则”,是对1982年的《建筑面积计算规则》进行的修订。2005年建设部以国家标准发布了《建筑工程建筑面积计算规范》(GB/T50353-2005)。

此次修订是在总结《建筑工程建筑面积计算规范》(GB/T50353-2005)实施情况的基础上进行的,鉴于建筑发展中出现的新结构、新材料、新技术、新的施工方法,为了解决建筑技术的发展产生的面积计算问题,本着不重算,不漏算的原则,对建筑面积的计算范围和计算方法进行了修改统一和完善。

1.0.2 本条规定了本规范的适用范围。条文中所称建设全过程是指从项目建议书、可行性研究报告至竣工验收、交付使用的过程。

2 术 语

  2.0.1 建筑面积包括附属于建筑物的室外阳台、雨篷、檐廊、室外走廊、室外楼梯等。

  2.0.5 具备可出入、可利用条件(设计中可能标明了使用用途,也可能没有标明使用用途或使用用途不明确)的围合空间,均属于建筑空间。

  2.0.13 特指整体结构体系中承重的楼层,包括板、梁等构件。结构层承受整个楼层的全部荷载,并对楼层的隔声、防火等起主要作用。

  2.0.14 落地橱窗是指在商业建筑临街面设置的下槛落地、可落在室外地坪也可落在室内首层地板,用来展览各种样品的玻璃窗。

  2.0.15 凸窗(飘窗)既作为窗,就有别于楼(地)板的延伸,也就是不能把楼(地)板延伸出去的窗称为凸窗(飘窗)。凸窗(飘窗)的窗台应只是墙面的一部分且距(楼)地面应有一定的高度。

  2.0.16 檐廊是附属于建筑物底层外墙有屋檐作为顶盖,其下部一般有柱或栏杆、栏板等的水平交通空间。

  2.0.19 雨篷是指建筑物出入口上方、凸出墙面、为遮挡雨水而单独设立的建筑部件。雨篷划分为有柱雨篷(包括独立柱雨篷、多柱雨篷、柱墙混合支撑雨篷、墙支撑雨篷)和无柱雨篷(悬挑雨篷)。如凸出建筑物,且不单独设立顶盖,利用上层结构板(如楼板、阳台底板)进行遮挡,则不视为雨篷,不计算建筑面积。对于无柱雨篷,如顶盖高度达到或超过两个楼层时,也不视为雨篷,不计算建筑面积。

  2.0.20 门廊是在建筑物出入口,无门、三面或二面有墙,上部有板(或借用上部楼板)围护的部位。

2.0.24 变形缝是指在建筑物因温差、不均匀沉降以及地震而可能引起结构破坏变形的敏感部位或其它必要的部位,预先设缝将建筑物断开,令断开后建筑物的各部分成为独立的单元,或者是划分为简单、规则的段,并令各段之间的缝达到一定的宽度,以能够适应变形的需要。根据外界破坏因素的不同,变形缝一般分为伸缩缝、沉降缝、抗震缝三种。

  2.0.25 骑楼是指沿街二层以上用承重柱支撑骑跨在公共人行空间之上,其底层沿街面后退的建筑物。

  2.0.26过街楼是指当有道路在建筑群穿过时为保证建筑物之间的功能联系,设置跨越道路上空使两边建筑相连接的建筑物。

  2.0.28 露台应满足四个条件:一是位置,设置在屋面、地面或雨篷顶,二是可出入,三是有围护设施,四是无盖,这四个条件须同时满足。如果设置在首层并有围护设施的平台,且其上层为同体量阳台,则该平台应视为阳台,按阳台的规则计算建筑面积。

  2.0.30 台阶是指建筑物出入口不同标高地面或同楼层不同标高处设置的供人行走的阶梯式连接构件。室外台阶还包括与建筑物出入口连接处的平台。  

3 计算建筑面积的规定

  3.0.1 建筑面积计算,在主体结构内形成的建筑空间,满足计算面积结构层高要求的均应按本条规定计算建筑面积。主体结构外的室外阳台、雨篷、檐廊、室外走廊、室外楼梯等按相应条款计算建筑面积。当外墙结构本身在一个层高范围内不等厚时,以楼地面结构标高处的外围水平面积计算。

  3.0.2 建筑物内的局部楼层见图1

145.jpg

       3.0.4 场馆看台下的建筑空间因其上部结构多为斜板,所以采用净高的尺寸划定建筑面积的计算范围和对应规则。室内单独设置的有围护设施的悬挑看台,因其看台上部设有顶盖且可供人使用,所以按看台板的结构底板水平投影计算建筑面积。 “有顶盖无围护结构的场馆看台”所称的“场馆”为专业术语,指各种“场”类建筑,如:体育场、足球场、网球场、带看台的风雨操场等。

  3.0.5 地下室作为设备、管道层按本规范第3.0.26条执行;地下室的各种竖向井道按本规范第3.0.19条执行;地下室的围护结构不垂直于水平面的按本规范第3.0.18条规定执行。

  3.0.6 出入口坡道分有顶盖出入口坡道和无顶盖出入口坡道,出入口坡道顶盖的挑出长度,为顶盖结构外边线至外墙结构外边线的长度;顶盖以设计图纸为准,对后增加及建设单位自行增加的顶盖等,不计算建筑面积。顶盖不分材料种类(如钢筋混凝土顶盖、彩钢板顶盖、阳光板顶盖等)。地下室出入口见图2

146.jpg

      3.0.7 本条既适用于建筑物吊脚架空层、深基础架空层建筑面积的计算,也适用于目前部分住宅、学校教学楼等工程在底层架空或在二楼或以上某个甚至多个楼层架空,作为公共活动、停车、绿化等空间的建筑面积的计算。架空层中有围护结构的建筑空间按相关规定计算。建筑物吊脚架空层见图3

147.jpg

      3.0.9 无围护结构的架空走廊见图4。有围护结构的架空走廊见图5

148.jpg

149.jpg

      3.0.10 本条主要规定了图书馆中的立体书库、仓储中心的立体仓库、大型停车场的立体车库等建筑的建筑面积计算规定。起局部分隔、存储等作用的书架层、货架层或可升降的立体钢结构停车层均不属于结构层,故该部分分层不计算建筑面积。

      3.0.14 檐廊见图6

150.jpg

      3.0.15 门斗见图7

151.jpg

      3.0.16 雨篷分为有柱雨篷和无柱雨篷。有柱雨篷,没有出挑宽度的限制,也不受跨越层数的限制,均计算建筑面积。无柱雨篷,其结构板不能跨层,并受出挑宽度的限制,设计出挑宽度大于或等于2.10m时才计算建筑面积。出挑宽度,系指雨篷结构外边线至外墙结构外边线的宽度,弧形或异形时,取最大宽度。

  3.0.18 本规范的2005版条文中仅对围护结构向外倾斜的情况进行了规定,本次修订后条文对于向内、向外倾斜均适用。在划分高度上,本条使用的是“结构净高”,与其他正常平楼层按层高划分不同,但与斜屋面的划分原则相一致。由于目前很多建筑设计追求新、奇、特,造型越来越复杂,很多时候根本无法明确区分什么是围护结构、什么是屋顶,因此对于斜围护结构与斜屋顶采用相同的计算规则,即只要外壳倾斜,就按结构净高划段,分别计算建筑面积。斜围护结构见图8

152.jpg

      3.0.19 建筑物的楼梯间层数按建筑物的层数计算。有顶盖的采光井包括建筑物中的采光井和地下室采光井。地下室采光井见图9

153.jpg

      3.0.20 室外楼梯作为连接该建筑物层与层之间交通不可缺少的基本部件,无论从其功能、还是工程计价的要求来说,均需计算建筑面积。层数为室外楼梯所依附的楼层数,即梯段部分投影到建筑物范围的层数。利用室外楼梯下部的建筑空间不得重复计算建筑面积;利用地势砌筑的为室外踏步,不计算建筑面积。

  3.0.21 建筑物的阳台,不论其形式如何,均以建筑物主体结构为界分别计算建筑面积。

  3.0.23 幕墙以其在建筑物中所起的作用和功能来区分,直接作为外墙起围护作用的幕墙,按其外边线计算建筑面积;设置在建筑物墙体外起装饰作用的幕墙,不计算建筑面积。

  3.0.24 为贯彻国家节能要求,鼓励建筑外墙采取保温措施,本规范将保温材料的厚度计入建筑面积,但计算方法较2005年规范有一定变化。建筑物外墙外侧有保温隔热层的,保温隔热层以保温材料的净厚度乘以外墙结构外边线长度按建筑物的自然层计算建筑面积,其外墙外边线长度不扣除门窗和建筑物外已计算建筑面积构件(如阳台、室外走廊、门斗、落地橱窗等部件)所占长度。当建筑物外已计算建筑面积的构件(如阳台、室外走廊、门斗、落地橱窗等部件)有保温隔热层时,其保温隔热层也不再计算建筑面积。外墙是斜面者按楼面楼板处的外墙外边线长度乘以保温材料的净厚度计算。外墙外保温以沿高度方向满铺为准,某层外墙外保温铺设高度未达到全部高度时(不包括阳台、室外走廊、门斗、落地橱窗、雨篷、飘窗等),不计算建筑面积。保温隔热层的建筑面积是以保温隔热材料的厚度来计算的,不包含抹灰层、防潮层、保护层(墙)的厚度。建筑外墙外保温见图10

154.jpg

       3.0.25 本规范所指的与室内相通的变形缝,是指暴露在建筑物内,在建筑物内可以看得见的变形缝。

  3.0.26 设备层、管道层虽然其具体功能与普通楼层不同,但在结构上及施工消耗上并无本质区别,且本规范定义自然层为“按楼地面结构分层的楼层”,因此设备、管道楼层归为自然层,其计算规则与普通楼层相同。在吊顶空间内设置管道的,则吊顶空间部分不能被视为设备层、管道层。

  3.0.27 不计算建筑面积项目:

  1 指的是依附于建筑物外墙外不与户室开门连通,起装饰作用的敞开式挑台(廊)、平台,以及不与阳台相通的空调室外机搁板(箱)等设备平台部件;

       2 骑楼见图11,过街楼见图12:

155.jpg

156.jpg

       3 指的是影剧院的舞台及为舞台服务的可供上人维修、悬挂幕布、布置灯光及布景等搭设的天桥和挑台等构件设施;

  5 建筑物内不构成结构层的操作平台、上料平台(包括:工业厂房、搅拌站和料仓等建筑中的设备操作控制平台、上料平台等),其主要作用为室内构筑物或设备服务的独立上人设施,因此不计算建筑面积。

  6 附墙柱是指非结构性装饰柱;

  7 室外钢楼梯需要区分具体用途,如专用于消防楼梯,则不计算建筑面积,如果是建筑物唯一通道,兼用于消防,则需要按本规范的第3.0.20条计算建筑面积。

  • 0532-8699-3566

  • hezhenggc@163.com

  • 青岛西海岸新区漓江西路987号滨海大厦15楼

  • 和正工程造价咨询—工程造价,工程咨询,招标代理,政府采购招标代理,工程项目管理,全过程咨询

    关注公众号

  • 和正工程造价咨询—工程造价,工程咨询,招标代理,政府采购招标代理,工程项目管理,全过程咨询

    手机站

  • 服务热线

    0532-8699-3566

    工程造价

    工程咨询

    招标代理

    工程项目管理

    和正工程造价咨询—工程造价,工程咨询,招标代理,政府采购招标代理,工程项目管理,全过程咨询

    手机站

    和正工程造价咨询—工程造价,工程咨询,招标代理,政府采购招标代理,工程项目管理,全过程咨询

    关注公众号